Kousek přírody v srdci města
Malý projekt se čtyřmi byty cílí na propojení klidu a výhledu do zeleně s cetrem Českých Budějovic.
Rezidence u Srdíčka se nachází na Lannově třídě – pouhých 300 metrů od historického centra.
Stavba je celá orientována do vnitrobloku a nabízí tak odpočinek od rušného městského života.
Na maximální klid cílí i dispozice domu – pouze 1 byt na každém patře.
Vlastnit byt nedaleko centra krajského města je dlouhodobě výhodná investice. Kromě příjemného bydlení nabízí lokalita i zajímavý příjem z pronájmu.
Včasným zarezervováním bytu před jeho dokončením zajistíte výhodnou fixní cenu při závěrečném nákupu a vyhnete se riziku nárůstu ceny během výstavby.
Na co se můžete těšit?
| Podlaží | Dispozice | Celková plocha | Podlahová plocha | Terasa | Cena | Dostupnost |
|---|---|---|---|---|---|---|
| 1.NP | 2+kk | 58,9 m2 | 52,3 m2 | 20 m2 | 6.590.000 Kč | Rezervace |
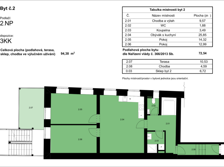
| 2.NP | 3+kk | 94,4 m2 | 72,5 m2 | 10,5 m2 | 8.190.000 Kč | Na prodej |
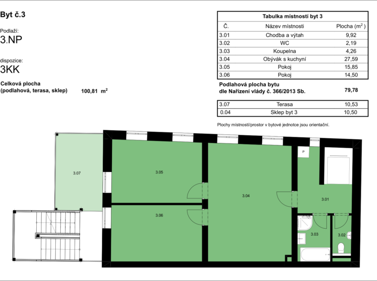
| 3.NP | 3+kk | 100,8 m2 | 79,8 m2 | 10,5 m2 | 8.890.000 Kč | Na prodej |
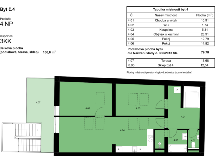
| 4.NP | 3+kk | 106,0 m2 | 79,8 m2 | 13,7 m2 | 9.130.000 Kč | Na prodej |
Ze stávající stavby budou zachovány pouze nosné konstrukce 1. a 2. podlaží. V těchto podlažích budou umístěny dva kompletně rekonstruované byty. Ve 3. a 4. NP vzniknou nástavbou dvě nové bytové jednotky. Nově bude instalováno venkovní schodiště a výtah na čip vedoucí přímo do domovní předsíně, čímž odpadne údržba společných prostor.
Kotelna, rozvody vody a energií, venkovní zateplení, střecha, okna a interiéry budou kompletně nově zhotoveny.
Fine Flats s.r.o.
IČO 19778511
Lannova tř. 51/23, České Budějovice 6, 370 01 České Budějovice
Compare listings
ComparePlease enter your username or email address. You will receive a link to create a new password via email.
Pro zlepšení vašeho zážitku na našich stránkách používáme soubory cookie. Používáním našich stránek souhlasíte s používáním souborů cookie.
Webové stránky ukládají soubory cookie za účelem vylepšení funkčnosti a personalizace vašeho zážitku. Své preference můžete spravovat, ale blokování některých souborů cookie může ovlivnit výkon a služby webu.
Základní soubory cookie umožňují základní funkce a jsou nezbytné pro správné fungování webových stránek.
Google Tag Manager simplifies the management of marketing tags on your website without code changes.
These cookies are used for managing login functionality on this website.
Statistické soubory cookie shromažďují informace anonymně. Tyto informace nám pomáhají pochopit, jak návštěvníci používají naše webové stránky.
Google Analytics is a powerful tool that tracks and analyzes website traffic for informed marketing decisions.
Service URL: policies.google.com (opens in a new window)
Marketingové soubory cookie se používají ke sledování návštěvníků webových stránek. Jejich účelem je zobrazovat reklamy, které jsou pro jednotlivého uživatele relevantní a poutavé.